Huurwoning huren: niet meer beschikbaar Geest in Den Haag

  • 107 m2
  • 5 kamers
  • 20 Per direct
  • Onbepaalde tijd
Op deze pagina vind je alle informatie over deze Huurwoning in Den Haag. Als je vragen hebt kun je contact opnemen met de aanbieder.

Unieke dubbele bovenwoning (ca. 107m2) met 4 slaapkamers, 2 aparte toiletten, 2 balkons op het zuiden en een zonnig dakterras gelegen in hartje Centrum Den Haag.

INDELING
Begane grond: Algemeen entree, 1e verdieping: Privé entree woning.
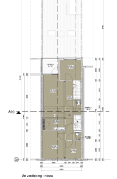
2e verdieping Overloop die toegang geeft tot de 4 slaapkamers waarvan 2 aan de voorzijde van de woning en 2 aan de achterzijde. De grote slaapkamer aan de achterzijde geeft toegang tot een van de balkons.
De 2 grote slaapkamers zijn voorzien van airconditioning. Badkamer voorzien van ruime inloopdouche met 2 douchekoppen, dubbele wastafel en radiator. Tevens bevinden zich op deze verdieping een separaat toilet en een wasruimte. Trap naar de tweede etage.
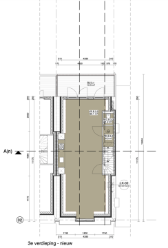
3e verdieping: Separaat toilet met wastafel. Ruime en lichte woonkamer met open keuken en openslaande deuren naar een zonnige balkon. Keuken voorzien van luxe inbouw apparatuur (Bora kooplaat en Siemens apparatuur), Quooker, oven, magnetron, vaatwasser, koelkast en vriezer. Vaste open trap naar het ruime zonnige dakterras met zicht over de skyline van Den Haag.

Afmetingen slaapkamers (cm):
slaapkamer 1: 195 x 285
slaapkamer 2: 282 x 440
slaapkamer 3: 250 x 268
slaapkamer 4: 280 x 430

BIJZONDERHEDEN
- volledig gerenoveerd
- woning wordt opgeleverd zonder raambekleding
- voorzien van PVC visgraat vloeren
- 4 slaapkamers
- 2 balkons op het zuiden
- dakterras met zicht over de stad
- de gehele woning voorzien van dubbelglas
- airconditioning in de 2 grote slaapkamers

EXTRA INFORMATIE
- huurprijs €2.450,- exclusief per maand
- huurder is verantwoordelijk voor de aansluiting van de nutsvoorzieningen
- borg is 01 maand huur
- minimale huur periode 12 maanden
- niet geschikt voor woningdelers

OMGEVING
De wijk Centrum is bruisend en veelzijdig en bekend van onder andere het Binnenhof, de Hofvijver, Paleis Noordeinde en de Koninklijke stallen. Je vindt er veel winkels ,horeca, uitgaansgelegenheden, culturele instellingen en musea. Moderne hoogbouw vormt de indrukwekkende skyline van Den Haag. In de oude binnenstad met monumentale panden, statige lanen en sfeervolle pleinen kun je eindeloos slenteren en verdwalen in de kleine straatjes en intieme hofjes. Het Centrum is ook de plek voor grootschalige evenementen op het Malieveld, rondom de Hofvijver en op het Lange Voorhout.
In het Centrum vind je een brede mix van woningen. Van statige grachtenpanden en 17e eeuwse hofjes woningen tot moderne appartementen. De pleinen en straten ademen elk een eigen sfeer en je vindt er veel mooie openbare binnentuinen. Wonend in het Centrum heb je alle voorzieningen die je maar kan wensen onder handbereik. In de autoluwe en historische kern vind je bekende internationale ketens op loopafstand van hippe modeboetieks, ambachtelijke winkeltjes en conceptstores. Bijzonder zijn ook de Haagse passage en Chinatown. Zin in een terrasje pakken of lekker stappen? Dat kan uitstekend op het Plein of de Grote Markt.
Verscholen tussen Paleis Noordeinde, de Koninklijke Stallen en het Koninklijk Archief ligt de prachtige Paleistuin waar je heerlijk kunt picknicken. Wil je even ontsnappen aan alle hectiek van de stad? Het nabijgelegen Haagse Bos is een heerlijk stadsbos om te wandelen en te luieren.

Lees meer met een pakket!

Algemene informatie

Soort: Dubbel Bovenwoning
Stad Den Haag
Wijk/buurt: Kortenbos
Inschrijven gemeente: Ja
Opleverniveau: Gemeubileerd
Huisgenoten: Geen
Bezichtiging In overleg

Faciliteiten

Eigen badkamer
Eigen keuken
Eigen toilet
Eigen voordeur
Vraag de adverteerder
Vraag de adverteerder
Eigen woonkamer
Tonen op kaart